Duplex | Kasterlee

Omschrijving

Nieuwbouw appartement met 3 slaapkamers, terras en carport in het centrum van Kasterlee.

Het appartement bevindt zich op de eerste verdieping en maakt deel uit van een kleinschalig residentie “Klamper”.

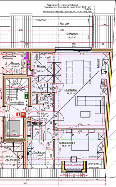
Het appartement (115,66mē) bestaat uit een inkomhal met gastentoilet. De inkomhal geeft achteraan uit op een leefruimte met een open keuken, eet- en zithoek.

De keuken is ingericht met fornuis, afzuigkap, inbouwijskast en vaatwasser. Aanpalend aan de zithoek is er een dakterras bereikbaar via een schuifraam. Aanpalend aan de keuken is er een bergruimte met aansluiting voor wasmachine en droogkast.

Vooraan is er een badkamer met grote inloopdouche en badkamermeubel met dubbele lavabo. Aan de straatzijde zijn er 2 mooie slaapkamers en achteraan is er een 3de slaapkamer en extra berging/ cv-ruimte.

Het appartement bevindt zich op de markt op wandelafstand van de winkels (25m), openbaar vervoer (50m) en de school (300m).

Het appartement is INSTAPKLAAR.

Troeven:
-Ligging in het centrum.
-Energiezuinig.
-Instapklaar.
-Ruime woonkamer.
-Autostaanplaats.

Indien u meer informatie wenst of een plaatsbezoek, aarzel dan niet contact op te nemen: tel. 0496 / 51.10.10 of christoffel@vastgoedpicavet.be
Adres:   Turnhoutsebaan 13, bus 6 - 2460 Kasterlee
Pand op kaartOmgeving pand

Indeling Gelijkvloers

Garage  14,44 mēCarport achteraan de residentie.

Indeling Verdieping 1

Wc1  1,35 mēGastentoilet met handenwasser ter hoogte van de inkomhal.

Indeling Verdieping 2

Badkamer 1  7,76 mēBadkamer met lavabomeubel, grote inloopdouche en ligbad. Keramische tegelvloer.
Berging  5,31 mēBerging aanpalend aan de keuken, alsook aansluiting voor wasmachine en droogkast.
Cv ruimte  3,74 mēBerging waar ook cv-verwarmingsketel en ventilatie unit is geplaatst.
Inkomhal  4,90 mēRuime inkomhal die uitgeeft op de leefruimte achteraan, de badkamer en de slaapkamers.
Keuken 1  6,50 mēIngerichte open keuken in de leefruimte; inductiefornuis, pompsteen, inbouwijskast, vaatwasser en voldoende kastruimte.
Living  34,58 mēLeefruimte met open keuken en eet- en zithoek. De leefruimte geeft via een schuifraam uit op het dakterras achteraan.
Slaapkamer 1  15,81 mēGrote slaapkamer aan de voorzijde, keramische tegelvloer.
Terras  15,00 mēGroot dakterras ter hoogte van de leefruimte, bereikbaar via een schuifraam.

Indeling Verdieping 3

Badkamer 2  5,76 mēBadkamer met lavabomeubel, inloopdouche en toilet
Nachthal  2,26 mēNachthal die uitgeeft op de badkamer en slaapkamers onder dak.
Slaapkamer 2  11,08 mēSlaapkamer aan de voorzijde, keramische tegelvloer.
Slaapkamer 3  12,95 mēGrote slaapkamer achteraan, keramische tegelvloer.

Overige info

Aantal parkeerplaatsen  1
Afstand tot openbaar vervoer  50 m
Afstand tot winkels  15 m
Afstand tot school  300 m
Instapklaar  ja

Comfort

Keukentype  Geïnstalleerd
Verwarming  Aardgas - Hoge rendements condensatieketel op aardgas met vloerverwarming.
Verwarmingsketel  Individueel
Vloerverwarming  ja
Centrale verwarming  ja
Zonnepanelen  ja
Dubbelglas  ja
Lift  ja
Aansluiting elektriciteit  ja
Meter voor elektriciteit  Individuele meter
Aansluiting aardgas  ja
Meter voor aardgas  Individuele meter
Aansluiting telefoonlijn  ja
Aansluiting Internet  ja
Aansluiting waterleiding  ja
Meter voor waterleiding  Individuele meter

Geografische ligging

Adres  Turnhoutsebaan 13, bus 6 - 2460 Kasterlee
Vrij op  01/09/2023
Omgeving  Dorp

Bebouwing

Bebouwing  gesloten
Bouwjaar  2023
Grond oppervlakte  128,37 mē
Bouw oppervlakte  128,37 mē
Woonoppervlakte  128,37 mē
Aantal gevels  2
Verdieping  1 van 3
Aantal slaapkamers  3
Aantal badkamers  1
Aantal wc's  2

Ruimtelijke ordening

Stedenbouwkundige vergunning verkregen    Niet ingegeven
Optionele informatie    Niet ingegeven
Dagvaardingen uitgebracht    Niet ingegeven
Voorkooprecht op dit goed    Niet ingegeven
Verkavelingsvergunning verkregen    Niet ingegeven
Print deze pagina e-mail deze pagina vraag meer informatie Pand delen