Duplex | Tielen
Omschrijving
Duplex met 4 tot 5 slaapkamers in het centrum van Tielen.Het duplexappartement is INSTAPKLAAR, volledig geschilderd en voorzien van lichtarmaturen.
GEEN GEMEENSCHAPPELIJKE KOSTEN!
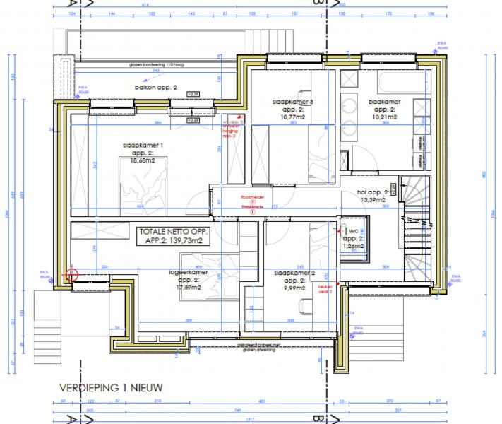
De eerste verdieping bestaat uit een nachthal die uitgeeft op de badkamer. Deze bestaat uit een badkamermeubel met twee lavabos, ligbad, douche en aansluiting voor wasmachine en droogkast. Verder zijn er 4 ruime slaapkamers waarvan 1 grote slaapkamer met terras achteraan, 2 slaapkamers zijn tevens voorzien van een dressing. Op de gang is er een apart toilet met handenwasser.
De dakverdieping met veel lichtinval bestaat uit een grote woonkamer met open keuken, bureauhoek en aanpalende eethoek. De eethoek kan eventueel ook gebruikt worden als 5de slaapkamer. De leefruimte geeft via een schuifraam uit op het groot dakterras achteraan met een mooi uitzicht op het achterliggend groen.
De open keuken is volledig ingericht (keramische kookplaat, afzuigkap, ijskast, oven en vaatwasser).
Verder is er boven een berging/badkamer met lavabomeubel, regendouche en apart toilet.
De verwarming op de eerste verdieping is op basis van vloerverwarming, de dakverdieping is voorzien van low H20 convectoren van Jaga.
Aan de zuidkant zijn overal rolluiken voorzien.
Ondergronds is er een ruime berging die bestaat uit 3 compartimenten en koele kelder van in totaal 33,06mē.
Onder dak is er een grote zolderverdieping bereikbaar via een uittrekbare trap in de woonkamer.
Achteraan zijn er twee autostaanplaatsen voorzien.
Er is een gemeenschappelijke meterruimte.
De duplex is gelegen in het centrum van Tielen op wandelafstand van de winkels, de scholen, het station en de bushalte.
Voor meer informatie: bel 014 71 50 08 of e-mail: info@vastgoedpicavet.be.
Pand op kaartOmgeving pand
|
Indeling Verdieping 1 | ||
|---|---|---|
| Badkamer 1 | 10.21 mē | Badkamer bestaande uit dubbel lavabomeubel, ligbad, douche en aansluiting wasmachine en droogkast. |
| Inkomhal | 13.39 mē | Ruime inkomhal naar het slaapgedeelte, met eveneens toegang naar de kelder en de dakverdieping. |
| Living | 30.78 mē | Leefruimte met veel lichtinval, via een schuifraam geeft deze uit op het dakterras achteraan. |
| Slaapkamer 1 | 18.68 mē | Grote slaapkamer aan de achterzijde met dressing, de kamer geeft uit op een balkon achteraan. |
| Slaapkamer 2 | 17.89 mē | Grote slaapkamer aan de voorzijde met dressing. |
| Slaapkamer 3 | 10.77 mē | Grote slaapkamer achteraan. |
| Slaapkamer 4 | 9.99 mē | Kleine slaapkamer vooraan. |
| Wc1 | 1.26 mē | Apart toilet met handen wasser. |
|
Indeling Verdieping 2 | ||
| Badkamer 2 | 7.84 mē | Badkamer bestaande uit lavabomeubel en douche. |
| Eetkamer | 11.82 mē | Eetkamer in de dakverdieping, gelegen naast de open keuken. |
| Keuken 1 | 6.08 mē | Ingerichte keuken met keramische kookplaat, ijskast, combi-oven, vaatwasser. |
| Slaapkamer 5 | 11.82 mē | In de dakverdieping kan de eethoek eventueel ook gebruikt worden als 5de slaapkamer. |
| Terras | 14.57 mē | Groot dakterras met mooi uitzicht over de omgeving, zuid georiënteerd. |
| Wc2 | 1.02 mē | Apart toilet |
|
Indeling Verdieping 3 | ||
| Zolder1 | 31 mē | Zolderverdieping onder dak, bereikbaar via een uittrekbare trap in de woonkamer. |
|
Indeling Verdieping -1 | ||
| Kelder | 33.06 mē | Grote ondergrondse kelder bestaande uit 3 compartimenten, bereikbaar via vaste trap.De kelder is voorzien van een toegang langs de buitenzijde. |
Overige info
| Orientatie tuin | Z |
| Aantal douches | 1 |
| Aantal garages | 1 |
| Afstand tot openbaar vervoer | 50 m |
| Afstand tot winkels | 50 m |
| Afstand tot school | 300 m |
Comfort
| Keukentype | Geïnstalleerd |
| Verwarming | Aardgas - Vloerverwarming op de 1ste verdieping en H2O convectoren in de dakverdieping. |
| Verwarmingsketel | Individueel |
| Vloerverwarming | ja |
| Bevloering | Keramische tegels en laminaat. |
| Rolluiken | Aan de achterzijde zijn rolluiken voorzien. |
| Dubbelglas | ja |
| Aansluiting elektriciteit | ja |
| Meter voor elektriciteit | Individuele meter |
| Aansluiting aardgas | ja |
| Meter voor aardgas | Individuele meter |
| Aansluiting telefoonlijn | ja |
| Aansluiting Internet | ja |
| Aansluiting waterleiding | ja |
| Meter voor waterleiding | Individuele meter |
Geografische ligging
| Adres | Gierlebaan 21, bus 2 - 2460 Tielen |
| Vrij op | 01/07/2022 |
| Omgeving | Dorp |
Bebouwing
| Renovatiejaar | 2020 |
| Bouw oppervlakte | 150 mē |
| Woonoppervlakte | 139 mē |
| EPC waarde kWh/mē per jaar | 105 kWh/mē |
| EPC Certificaatnummer | 20200907-0002289100-rES-1 |
| Aantal slaapkamers | 4 |
| Aantal badkamers | 2 |
| Aantal wc's | 2 |
Ruimtelijke ordening
105

epc waarde: