Handelspand | Turnhout

Omschrijving

Handelsgelijkvloers met een oppervlakte van 92,50m² op een commerciële zichtlocatie vooraan De Merodelei, nabij de Zeshoek.

Het handelsgelijkvloers is opgedeeld in 3 compartimenten met een winkel vooraan en bureau/magazijn achteraan, dit kan eenvoudig opengetrokken worden tot één grote ruimte.

Tevens is er groeimogelijkheid, er kan extra winkelruimte bij gehuurd worden achteraan.

Sanitair is aanwezig.

Mogelijkheid om parkeerplaatsen bij te huren achteraan.

Voor bijkomende informatie of een plaatsbezoek: tel. 014 71 50 08 of info@vastgoedpicavet.be .

Adres:   De Merodelei 32 - 2300 Turnhout
Pand op kaartOmgeving pand

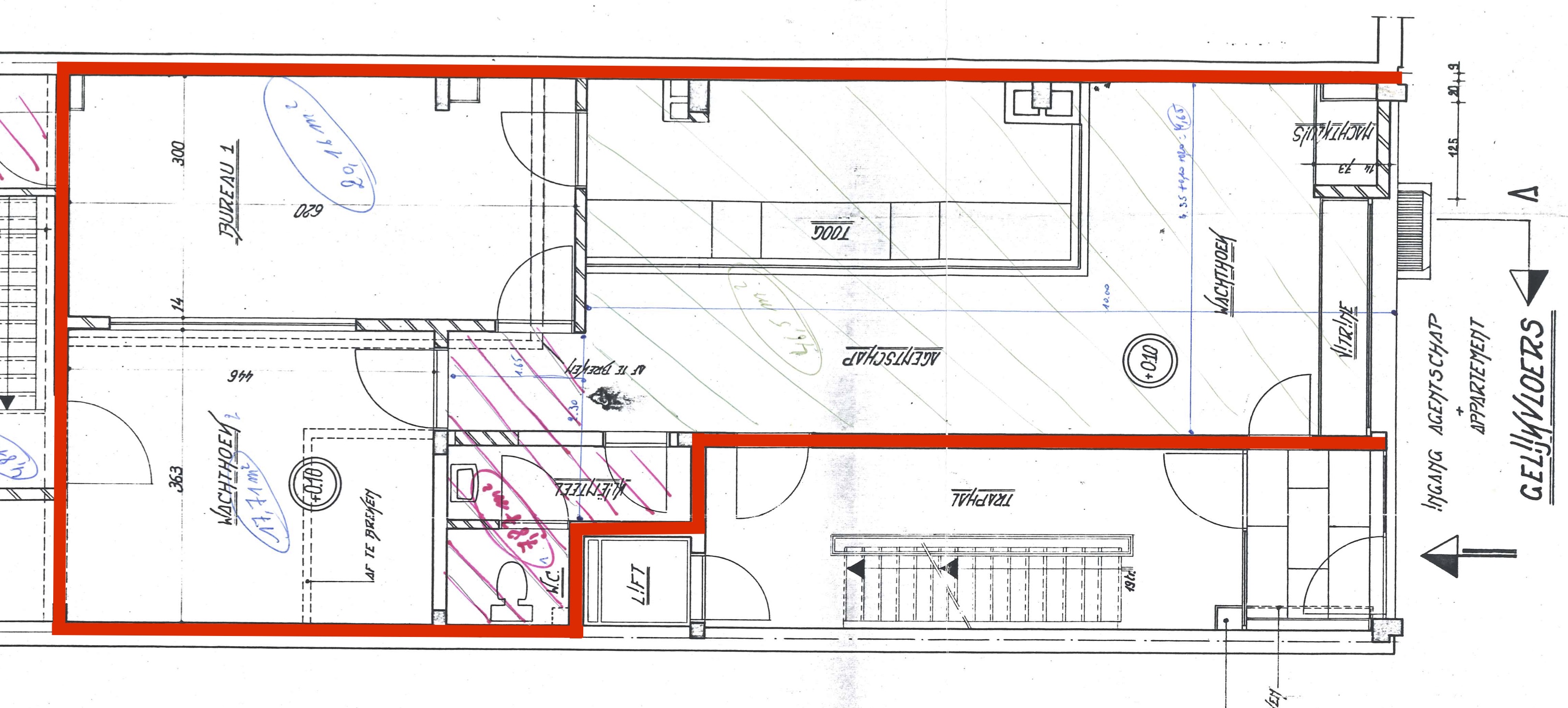
Indeling Gelijkvloers

handelsgelijkvloers  92,25 m²De handelszaak bestaat momenteel uit een winkel vooraan en een bureau en magazijn achteraan. Dit kan eenvoudig omgevormd tot één grote winkelruimte.

Overige info

Afstand tot openbaar vervoer  15 m
Afstand tot winkels  15 m
Afstand tot school  300 m

Comfort

Verwarming  Aardgas
Verwarmingsketel  Gemeenschappelijk
Meter voor elektriciteit  Individuele meter
Aansluiting waterleiding  ja
Meter voor waterleiding  Individuele meter

Geografische ligging

Adres  De Merodelei 32 - 2300 Turnhout
Vrij op  01/10/2019
Omgeving  Stad

Bebouwing

Grond oppervlakte  92,25 m²
Bouw oppervlakte  92,25 m²
Gevelbreedte  4,65 m
Aantal gevels  2

Ruimtelijke ordening

Stedenbouwkundige vergunning verkregen    Ja
Optionele informatie    Woongebied
Dagvaardingen uitgebracht    Nee
Voorkooprecht op dit goed    Nee
Verkavelingsvergunning verkregen    Nee
Print deze pagina e-mail deze pagina vraag meer informatie Pand delen